925 16th Avenue N, Saint Petersburg, FL 33704

$997,900
  • 925 16th Avenue N, Saint Petersburg, FL 33704 Main Photo

69 Total Photos [Click to View All]

Active
BEDS5 BATHS SQUARE FEET2,838 MLS#TB8448105
STATUSActive PROPERTY TYPEMulti Unit - Multiple SUBDIVISIONHILCREST

Property Description

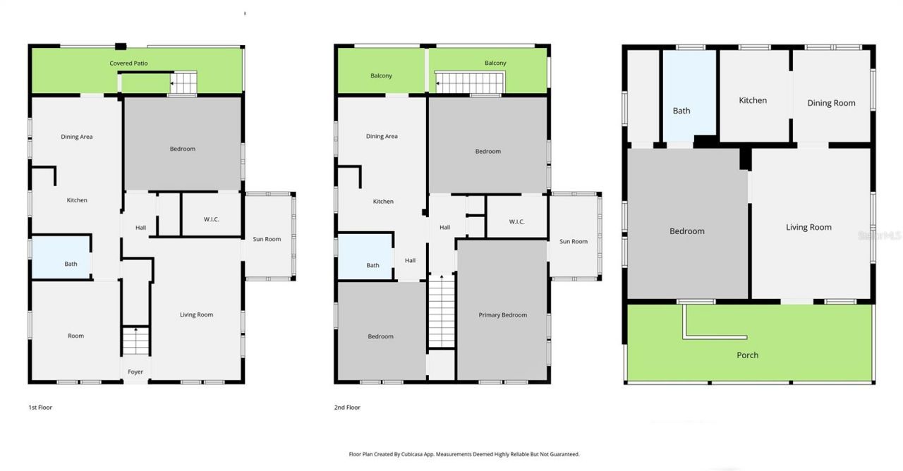
Located in the highly desirable Euclid St. Paul's neighborhood of St. Petersburg, this recently restored triplex perfectly blends historic charm with modern updates. The property features a versatile unit mix, including two spacious 2-bedroom, 1-bathroom units (each approximately 1,131 sq. ft.) offering large rear porches, sunrooms, dining areas, and separate laundry hookups, as well as one 1-bedroom, 1-bathroom garage apartment (576 sq. ft.) with its own laundry hookup, covered porch, and a two-car garage below. The front building is constructed entirely of concrete block-including both floors and the floor system between-while the detached garage apartment is wood frame construction. Each unit enjoys abundant natural light, spacious layouts, and a tasteful combination of modern finishes and original period details. Property features include separate electric meters for each unit and one shared water/sewer/trash meter, ample parking, and inviting common spaces for tenants. Situated on a charming brick street just steps from Crescent Lake Park and only minutes to downtown St. Petersburg, this property offers the perfect opportunity for investors or those looking to live in one unit and rent out the others. A truly turnkey, income-producing property in one of St. Pete's most sought-after neighborhoods.

925 16th Avenue N | MLS# TB8448105

This multi-family property located at 925 16th Avenue N, Saint Petersburg, FL 33704 is currently listed for sale with an asking price of $997,900. Search Saint Petersburg real estate on www.floridaexecutiverealty.com today.

Property Features

Property Type: Multi Unit - Multiple
Cooling: Central Air, Mini-Split Unit(s)
Garage: 2
Heating: Electric
Lot Size: 0.15 Acres
Roof Type: Shingle
Stories: 1.0
Taxes: $9,018
Year Built: 1925

Amenities

Eat-in Kitchen
Solid Surface Counters
Walk-In Closet(s)
Window Treatments
Sidewalk
Storage

Feature Descriptions

Additional Rooms: Family Room, Florida Room, Garage Apartment, Storage Rooms
Annual Net Income: 0.00
Appliances: Electric Water Heater, Range, Refrigerator
Days on Site: 134
Directions: 16th Ave N to address.
Exterior: Block, Frame
Flood Zone Code: X
Flooring: Luxury Vinyl
Foundation: Slab
Home Warranty Y/N: No
Listing Terms: Cash, Conventional
Lot: City Limits, Level, Oversized Lot, Sidewalk
Lot Dimensions: 0.15
Other Equipment: Irrigation Equipment
Ownership: Fee Simple
Parking: Garage Faces Rear, Ground Level, Guest, Open
Parking Notes: Garage Faces Rear, Ground Level, Guest, Open
Patio/Porch: Covered, Rear Porch
Property Attached Y/N: No
Property Sub-Type: Triplex
Sewer: Public Sewer
Showing Instructions: Lock Box Coded, ShowingTime
Special Sale Provisions: None
Units: 3
Utilities: Electricity Connected, Sewer Connected, Water Connected
Water: Public
Water Access Y/N: No

Listed By / Shown By

Listed By

Agency Name: KELLER WILLIAMS ST PETE REALTY
Agency Contact: murraycoleman@kw.com

Shown By

Agency Title: Florida Executive Realty
Agency Phone: 813-632-9452

IDX logo

Estimate Your Payment

Estimated Payment

$ 3,263.45 per month $2,220.89 Principal & Interest $751.50 Property Tax $291.05 Homeowner's Insurance

Change Payment Information

%
years/fixed
yearly
yearly (est.)
(Payments are an estimate and may vary by lender)

Login to My Homefinder

Pixel