567 Luzon Avenue, Tampa, FL 33606

$3,599,000
  • 567 Luzon Avenue, Tampa, FL 33606 Main Photo

50 Total Photos [Click to View All]

Pending
BEDS5 BATHS4 full 1 partial SQUARE FEET5,083 MLS#T3505834
STATUSPending PROPERTY TYPEResidential - Single Family SUBDIVISIONBYARS THOMPSON

Property Description

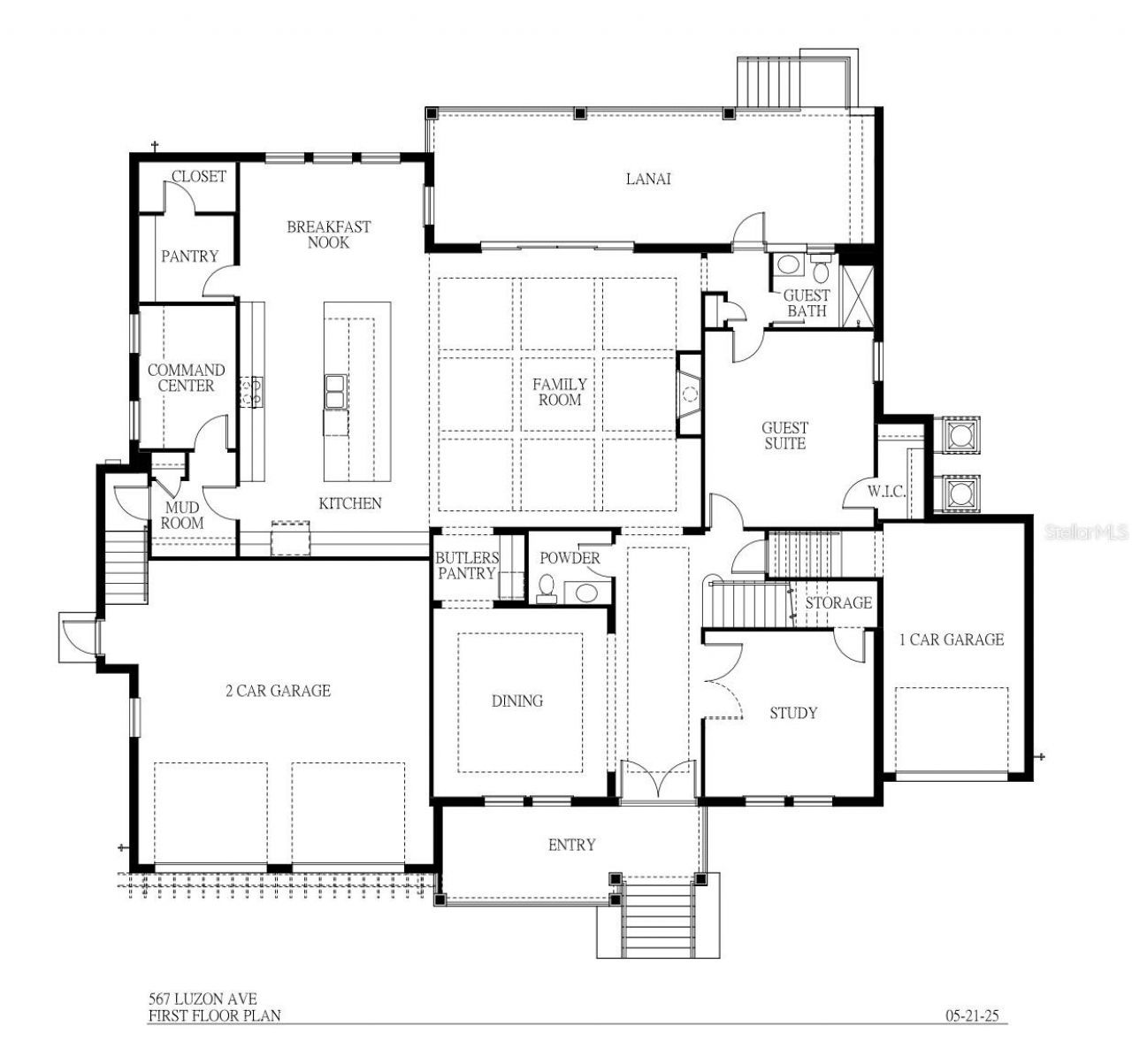
Under Construction. Under Construction. Nearing Completion. Luxury Living on Davis Islands - Ready Mid 2026 with full selection lookbook available NOW!Mobley Homes Custom is crafting a masterpiece on an oversized 90x126 lot in the Gorrie, Wilson, Plant School District. This South Tampa gem features 10' ceilings, 8' doors, and hardwood floors throughout (except baths), with premium finishes and a double AC system.The open island kitchen is a showstopper, equipped with a 48 Classic Side-by-Side Refrigerator/Freezer, dual 24 Drawer Microwaves, and a Paneled Dishwasher. It features Napa micro-shaker cabinets in white oak, quartz countertops in Abaco White, an apron sink, pot filler, and bar faucet in the Butler's Pantry. Custom lighting and a breakfast nook elevate the space, complemented by a double walk-in pantry, mud room & command center. Outside, you'll find a beautiful pool/spa with outdoor kitchen under a covered lanai, along with a fenced yard, pool cage, and bamboo landscaping that will grow into over the next year to provide privacy. All connected to a downstairs pool bath and guest room... you'll also enjoy a study, formal dining room, living room with fireplace, & powder room with a standalone vanity all on the lower level.The owner's retreat upstairs offers a spacious sleeping space, expansive his-and-her walk-in closets with built-ins installed, and a spa-inspired bath with Napa micro-shaker cabinets, split vanities, a grand shower, four sconce lights, and marble mosaic floors. Four secondary bedrooms, loft, feature hardwood floors and 5 crown molding. The foyer includes bead detailing and Kwikset Halifax matte black door hardware.Upstairs features four bedrooms (including three suites), a loft area, balcony, and a laundry room with a stackable 5.0 cu. ft. Smart Front Load Washer and 7.8 cu. ft. Smart Front Load Electric Dryer.Exterior highlights include SW 7005 Pure White body/trim, SW 7048 Urbane Bronze garage, and a Raven-stained front door. Pavers in a Herringbone 90 pattern (Tremron/Granite, Grey) adorn the driveway, lanai, and porch, with gas coach lights enhancing curb appeal. The outdoor kitchen boasts a Tradewind 38 hood, 32 Artisan Grill, and Zephyr 24 Beverage Cooler.This Davis Islands stunner is not to be missed!

567 Luzon Avenue | MLS# T3505834

This single family home located at 567 Luzon Avenue, Tampa, FL 33606 is currently listed for sale with an asking price of $3,599,000. This property was built in 2025 and has 5 bedrooms and 4 full and 1 partial baths with 5083 sq. ft. Luzon Avenue is located in the BYARS THOMPSON subdivision. Search BYARS THOMPSON real estate on www.floridaexecutiverealty.com today.

Property Features

Property Type: Residential - Single Family
Cooling: Central Air, Zoned
Garage: 3 car attached
Heating: Central
Home Style: Traditional
Lot Size: 0.26 Acres
Roof Type: Shingle
Stories: 2.0
Taxes: $3,774
Year Built: 2025

Amenities

Eat-in Kitchen
Kitchen/Family Room Combo
Living Room/Dining Room Combo
Open Floorplan
PrimaryBedroom Upstairs
Balcony
Lighting
Sidewalk
Sliding Doors

Feature Descriptions

Additional Rooms: Bonus Room, Breakfast Room Separate, Den/Library/Office, Family Room, Interior In-Law Suite w/No Private Entry, Loft, Media Room
Appliances: Built-In Oven, Convection Oven, Dishwasher, Disposal, Dryer, Microwave, Range, Range Hood, Refrigerator, Washer
Builder: Mobley Homes Custom
Days on Site: 807
Directions: Take East Davis to Bosphorus and turn RIGHT. Proceed to Luzon and take a SOFT LEFT. Home site is on the RIGHT.
Exterior: Block, Frame
Flood Zone Code: AE
Flooring: Wood
Foundation: Slab, Stem Wall
Garage Dimensions: 34x25
HOA Y/N: Yes
Home Warranty Y/N: No
Listing Terms: Cash, Conventional
Lot: City Limits, Oversized Lot, Sidewalk, Paved
Lot Dimensions: 0.26
Model: 5063
Ownership: Fee Simple
Parking: Golf Cart Garage, Golf Cart Parking, On Street, Oversized, Parking Pad, Garage
Parking Notes: Golf Cart Garage, Golf Cart Parking, On Street, Overs
Patio/Porch: Covered, Front Porch, Patio, Rear Porch
Pets Allowed: Yes
Pool: In Ground, Lighting
Property Attached Y/N: No
Property Sub-Type: Single Family Residence
Sewer: Public Sewer
Showing Instructions: Appointment Only, Call Before Showing
Spa: Heated, In Ground
Special Sale Provisions: None
Swimming Pool: Yes
Utilities: BB/HS Internet Available, Cable Available, Electricity Connected, Fiber Optics, Water Available, Water Connected
Vegetation: Trees/Landscaped
Water: None
Water Access Y/N: No
Windows: ENERGY STAR Qualified Windows, Storm Window(s)
Zoning: RS-60

Room Sizes

Great Room: 22x21
Bedroom 5: 16x14
Kitchen: 21x19
Primary Bedroom: 19x19
Bedroom 2: 15x14
Bedroom 3: 14x12
Bedroom 4: 19x16
Bonus Room: 21x14
Balcony/Porch/Lanai: 18x8
Balcony/Porch/Lanai: 36x10

Local Schools

High School: Plant-HB
Middle School: Wilson-HB
Elementary School: Gorrie-HB

Listed By / Shown By

Listed By

Agency Name: EXIT BAYSHORE REALTY
Agency Contact: 813-839-6869

Shown By

Agency Title: Florida Executive Realty
Agency Phone: 813-908-8500

IDX logo

Estimate Your Payment

Estimated Payment

$ 9,374.02 per month $8,009.81 Principal & Interest $314.50 Property Tax $1,049.71 Homeowner's Insurance

Change Payment Information

%
years/fixed
yearly
yearly (est.)
(Payments are an estimate and may vary by lender)

Login to My Homefinder

Pixel