3673 45th Way N, Saint Petersburg, FL 33713

$269,900
  • 3673 45th Way N, Saint Petersburg, FL 33713 Main Photo

26 Total Photos [Click to View All]

New to the Market Active
BEDS2 BATHS1 full 1 partial SQUARE FEET1,105 MLS#TB8480365
STATUSActive PROPERTY TYPEResidential - Townhouse SUBDIVISIONBUTTONWOOD

Property Description

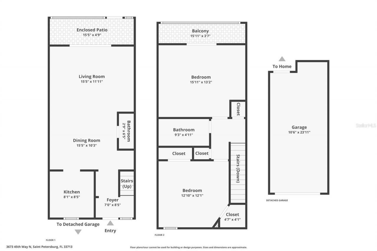
Townhome living just got an upgrade - and this beautifully maintained home is ready for you.A charming courtyard welcomes you in, setting the tone for the warmth and care you'll find throughout. Step inside to a welcoming foyer that opens into a thoughtfully designed main floor featuring gorgeous, carpet-free bamboo flooring that adds both style and durability.The kitchen offers sleek countertops, a deep stainless steel sink, and a stacked-stone accent on the breakfast bar that adds warmth and texture, blending function and charm. It flows seamlessly into the dining area, highlighted by a stylish chandelier, and into the open living room - creating an easy, connected space for everyday living or entertaining. Just beyond, enjoy a screened lanai, perfect for morning coffee or relaxing under those stunning Florida sunset skies.A convenient half bath completes the main level.Upstairs, both bedrooms provide comfortable retreats along with a full bath and a perfectly placed laundry closet - right where you need it. The primary bedroom features a stylish accent wall and even offers a private balcony, creating your own personal escape. The secondary bedroom is nicely sized and versatile for guests, an office, or additional living space.Parking is simple with a one-car garage plus an additional assigned parking spot. Enjoy truly low-maintenance living with no yard work and a low monthly HOA of just $150.Location is everything - and this one delivers. You'll love being just minutes from shopping, with quick access to downtown St. Petersburg (about 10 minutes) and the beautiful Gulf beaches (approximately 15 minutes).Stylish, convenient, and easy Florida living - this townhome checks all the boxes.

3673 45th Way N | MLS# TB8480365

This townhouse located at 3673 45th Way N, Saint Petersburg, FL 33713 is currently listed for sale with an asking price of $269,900. This property was built in 1983 and has 2 bedrooms and 1 full and 1 partial baths with 1105 sq. ft. 45th Way N is located in the BUTTONWOOD subdivision. Search BUTTONWOOD real estate on www.floridaexecutiverealty.com today.

Property Features

Property Type: Residential - Townhouse
Cooling: Central Air
Garage: 1
Heating: Central
Lot Size: 0.04 Acres
Roof Type: Shingle
Stories: 2.0
Taxes: $4,135
Year Built: 1983

Amenities

Ceiling Fans(s)
Living Room/Dining Room Combo
Open Floorplan
PrimaryBedroom Upstairs
Balcony
Courtyard
Sliding Doors

Feature Descriptions

Appliances: Range, Refrigerator
Community Features: Deed Restrictions
Days on Site: 5
Directions: From I-275 S - Take exit 25 for 38th Ave N, Slight right onto the ramp to US-19/Madeira Beach/Redington Bchs, Merge onto 38th Ave N, Turn right onto 46th St N, Turn left onto 39th Ave N, Turn left onto Tifton St N, Turn left onto 38th Ave N, Turn right on
Exterior: Frame
Flood Zone Code: X
Flooring: Bamboo, Ceramic Tile
Foundation: Slab
HOA Fee: 150/ Monthly
HOA Y/N: Yes
Home Warranty Y/N: No
Listing Terms: Cash, Conventional, FHA, VA Loan
Lot Dimensions: 0.04
Ownership: Fee Simple
Parking: Assigned, Garage Door Opener, Reserved
Parking Notes: Assigned, Garage Door Opener, Reserved
Patio/Porch: Rear Porch, Screened
Pets Allowed: Yes
Pets Restrictions: Buyer to confirm all pet information with the HOA
Property Attached Y/N: No
Property Sub-Type: Townhouse
Sewer: Private Sewer
Showing Instructions: Appointment Only, ShowingTime
Special Sale Provisions: None
Utilities: Electricity Connected, Public
Vegetation: Mature Landscaping
Water: Public
Water Access Y/N: No

Room Sizes

Dining Room: 15x10
Living Room: 15x11
Balcony/Porch/Lanai: 15x4
Primary Bedroom: 15x13
Bedroom 2: 12x12

Local Schools

High School: St. Petersburg High-PN
Middle School: Tyrone Middle-PN
Elementary School: Westgate Elementary-PN

Listed By / Shown By

Listed By

Agency Name: KELLER WILLIAMS SUBURBAN TAMPA
Agency Contact: murraycoleman@kw.com

Shown By

Agency Title: Florida Executive Realty
Agency Phone: 813.908.8500

IDX logo

Estimate Your Payment

Estimated Payment

$ 1,023.98 per month $600.68 Principal & Interest $344.58 Property Tax $78.72 Homeowner's Insurance

Change Payment Information

%
years/fixed
yearly
yearly (est.)
(Payments are an estimate and may vary by lender)

Login to My Homefinder

Pixel