0 Highland Street S, Saint Petersburg, FL 33705

$525,000
  • 0 Highland Street S, Saint Petersburg, FL 33705 Main Photo

2 Total Photos [Click to View All]

Active
BEDS3 BATHS2 full SQUARE FEET1,686 MLS#TB8424812
STATUSActive PROPERTY TYPEResidential - Single Family SUBDIVISIONWELSH'S LAKEVIEW

Property Description

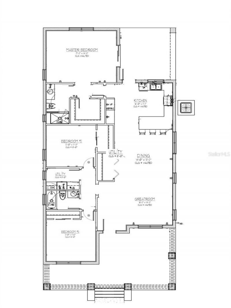
Pre-Construction. To be built. In the heart of South St. Petersburg, a traditional bungalow-style 1,650-square-foot single-family, one-story, block exterior construction, three bedrooms, two-bath home, just minutes south of St. Petersburg's vibrant downtown. Enjoy quick access to world-class restaurants, the Dali and James Museums, Tropicana Field, theatres, schools, hospitals, waterfront parks and the Pier. World-class St. Pete beaches are just a short drive to the west. Spend evenings sitting on the large front porch conversing with friends and neighbors. Guests enter your home where they will be greeted by the sought-after spacious open floor plan, featuring vaulted ceilings in the great room that continue through the dining area to the kitchen complete with an island featuring a granite surface. Enjoy cooking in your kitchen featuring shaker cabinetry with soft-close drawers, tile backsplash, pot filler over the stove, granite countertops and your choice of appliance colors. Your home will enjoy abundant natural light provided by the many hurricane-rated windows throughout the house. The large primary bedroom has an en-suite bath with large walk-in closet. Two additional bedrooms with remote-controlled ceiling fans complete the sleeping quarters. There are lots of storage options such as a closet/bar in the great room, pantry in the kitchen and a laundry room. A tall wood perimeter fence will ensure privacy while you barbecue and entertain in your backyard sanctuary.

0 Highland Street S | MLS# TB8424812

This single family home located at 0 Highland Street S, Saint Petersburg, FL 33705 is currently listed for sale with an asking price of $525,000. This property was built in 2025 and has 3 bedrooms and 2 full baths with 1686 sq. ft. Highland Street S is located in the WELSH'S LAKEVIEW subdivision. Search WELSH'S LAKEVIEW real estate on www.floridaexecutiverealty.com today.

Property Features

Property Type: Residential - Single Family
Cooling: Central Air
Fenced: Yes
Heating: Central
Home Style: Bungalow
Lot Size: 0.14 Acres
Roof Type: Shingle
Stories: 1.0
Taxes: $1,235
Year Built: 2025

Amenities

Kitchen/Family Room Combo
Open Floorplan
Thermostat
Vaulted Ceiling(s)
Walk-In Closet(s)
Sidewalk

Feature Descriptions

Appliances: Dishwasher, Disposal, Exhaust Fan, Microwave, Range Hood, Refrigerator
Days on Site: 245
Directions: Martin Luther King Drive South of I-175 to 22nd Avenue South, turn east for 1 block to Highland Street South, Turn left house will be on the west side of the street.
Exterior: Block
Fencing: Wood
Flood Zone Code: AE
Flooring: Ceramic Tile, Laminate
Foundation: Stem Wall
Home Warranty Y/N: No
Listing Terms: Cash, Conventional, FHA, VA Loan
Lot: Cleared, City Limits, Level, Sidewalk, Paved
Lot Dimensions: 0.14
Ownership: Fee Simple
Property Attached Y/N: No
Property Sub-Type: Single Family Residence
Sewer: Public Sewer
Showing Instructions: Sentri Lock Box
Special Sale Provisions: None
Utilities: Water Connected
Water: Public
Water Access Y/N: No
Zoning: NT-1

Room Sizes

Great Room: 18.2x14.2
Dining Room: 14x13.2
Kitchen: 16x11.1
Primary Bedroom: 17.2x14.1
Bedroom 2: 12x11.3
Bedroom 3: 12x11.6
Primary Bathroom: 11x8
Bathroom 1: 9x5.1
Laundry: 9x6.1

Listed By / Shown By

Listed By

Agency Name: PREMIER SOTHEBYS INTL REALTY
Agency Contact: 727-898-6800

Shown By

Agency Title: Florida Executive Realty
Agency Phone: 813-908-8500

IDX logo

Estimate Your Payment

Estimated Payment

$ 1,424.46 per month $1,168.42 Principal & Interest $102.92 Property Tax $153.13 Homeowner's Insurance

Change Payment Information

%
years/fixed
yearly
yearly (est.)
(Payments are an estimate and may vary by lender)

Login to My Homefinder

Pixel